
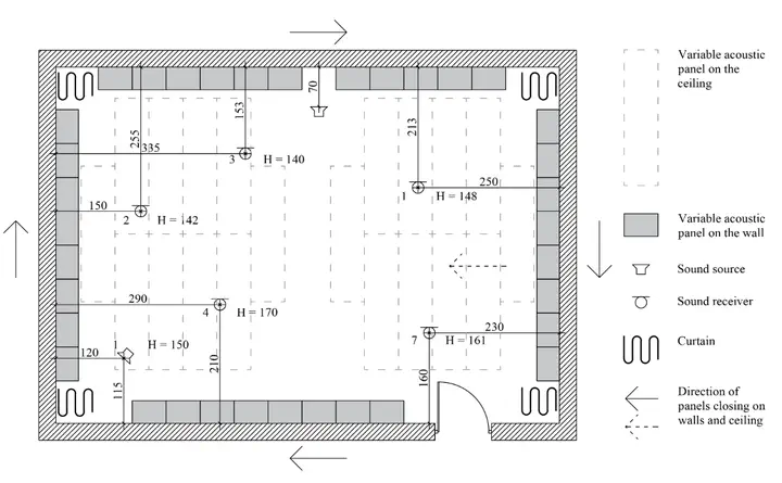
Reverberation time of a room is the most prominent parameter considered when designing the acoustics of physical spaces. Techniques for predicting reverberation of enclosed spaces started emerging over one hundred years ago. Since then, several formulas to estimate the reverberation time in different room types were proposed. Although validations of those models were conducted in the past, they lack testing in a space with a high granularity of controllable absorptive and reflective conditions. The present study discusses the reverberation time estimation techniques by comparing various formulas. Moreover, the reverberation time measurements in a variable acoustic laboratory for different combinations of reflective and absorptive panels are shown. The values calculated with the presented models are compared with the ones obtained via measurements. The results show that all formulas predict reverberation time values inaccurately, with an average error of 16% or larger. Among the analyzed models, Fitzroy’s formula gives the smallest error.